By David Pendered
Owners who in 2019 paid $575,000 for a house in Atlanta’s Old Fourth Ward neighborhood have asked the city to allow construction of a two-story accessory dwelling unit 15 inches from the property line. The current setback is 20 feet.

The application is among a growing number of requests for zoning variances to allow a second dwelling to be built on a lot designed to serve one house.
The number of applications for variances to enable construction of accessory dwelling units appears to be on the increase in recent months, based on a review of agendas for the city’s Neighborhood Planning Units. ADUs have previously been called granny flats and carriage houses.
Atlanta Mayor Keisha Lance Bottoms’ administration announced in December 2020 its support for zoning changes intended top promote construction of ADUs on land now occupied by a house. ADUs are presented as a way to ease the shortage of dwellings affordable to those earning salaries of teachers and firefighters. The city’s concept is to allow the owner of a house subdivide the lot, build a dwelling that will be affordably priced, and rent the ADU or sell it – with a clear title to the property on which it was built.
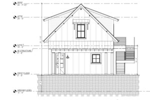
In the case pending 379 Pine St., NE, in Old Fourth Ward, the second house is called a carriage house and the request is to “construct a new 2 sty ADU.” It would be built in the backyard above a proposed parking pad, and accessed from an alley behind the backyard. The application mentions hardships but doesn’t mention the recent purchase of the property or renovation of the dwelling.
The application doesn’t mention that the property was purchased Jan. 31, 2019, which is noted in Fulton County tax records. Two owners are listed in tax records. The variance cites one owner.
The application doesn’t mention that the house had been remodeled by the prior owner. Tax records show the prior owner had paid $325,000 for the property on Nov. 21, 2017. The gross profit after 14 months was $250,000, records show.
The application does indicate the owner will incur hardship if the variance is denied:
- “Allowing the variance will provide an improvement for the quality of life for the owner, and allow him to remain in the city, provide more livable space and provide a sustainable improvement.”
In addition, the variance application states the unit won’t create any issues in the neighborhood:
- “No other variances above or beyond that of the setback reductions are being requested. Based on this, we believe that there will not be any foreseeable potential hardships or detriment upon any of the neighbors if granted. Including no adverse impact to noise, lights, trees, public health threats or vehicular traffic.”
The application provides this description of the project:
- “This letter is to request a variance to allow relief from zoning regulations to allow a variance to reduce the required setbacks to build a new detached ADU/CARRIAGE HOUSE with an overhead deck and additional parking pad below, exterior stairs and a covered porch per as follows:
- “1. Reduce the 20 foot required west side yard setback to1 foot, 3 inches;
- “2. Reduce the 20 foot required east side yard setback to 3 feet, 6 inches.”
The variance is needed to build the second house because the original lot is shaped like a slice of pie and doesn’t appear to have been intended to provide space for a second house. The application observes:
- “The required side yard setbacks actually meet in the middle of the lot and there’s no buildable allowance for new construction, if strictly adhering to the ordinance.”
Atlanta’s Board of Zoning Adjustment is slated to hear this variance request and a number of others at its meetings in March. The BZA is a quasi-judicial entity has final say in the city over variance requests. Rulings can be appealed to Fulton County Superior Court.

What’s the point of this article, Mr. NIMBY? Or really in the case of ADUs, it should be Not In Your Back Yard. ADUs present an excellent way to add housing units and gentle density. They also make better use of existing public infrastructure, like roads and water and sewer lines, which improves the financial sustainability of cities. Why does it matter that this is a new owner? That they have a remodeled home? That their home has appreciated? For all you know this is for an aging relative. Maybe it’s a backyard office for someone with preexisting conditions to keep working from home for the long term? Maybe it is for someone’s nurse or nanny that helps them with a debilitating condition? Maybe it is not your backyard or property, so you should support neighbors adding value to the community and tax base instead of trying to micromanage how others use their property?
Who cares how much profit was made by the prior owner! It takes a lot of words to fill this online rag.
And, maybe it’s for more AirBnB units that directly impact next door neighbors; and maybe it’s more lot coverage and concrete to aggravate the flooding issues for neighbors both next door and downslope and on the overloaded stormwater system, and maybe it means fewer trees to offset the heat island effect and mitigate air pollution. And maybe the adjacent property owners don’t want to have a structure right on the lot line because it presents possible lot line encroachments or encumbrances that materially impact their ability to sell (have two cases of that in Midtown – structure is close, retaining wall crossed the property line and now is a permanent hindrance on the adjacent property). And fifteen inches is a very tight space to effectively (hah) offset the water shedding from the additional hard surface / roof line to keep it off the neighbors property.
There’s a difference between wanting to build and wanting to build too close to the lot line.
If anybody actually believes these “extra” houses on a lot are going to be “affordable” for firefighters, teachers people who make $20 an hour they need to work on their critical thinking abilities. These abodes in these neighborhoods will be rented for substantive rents that will enable the lot owners to pay t heir otherwise hefty mortgages easily.
The City o Atlanta is allowing this — as well as the construction of McMansion Duplexes in Grant Park, Old Fourth Ward and elsewhere to increase the density for its tax base. at the expense of neighborhoods.
It’s important not to conflate the issue of application for variance with building additional housing to Code.
Variance are considered case by case, Code, including changes allowing additional units on single family lots, provide a means to plan and construct much needed housing in an efficient manner.
This is a poorly constructed article with many errors and misleading statements. Not what one has come to expect from Saporta Report.
David, I am also confused by your article. I understand the narrative held by many people that setbacks preserve neighborhood character, maintain property values, etc. I disagree with the narrative, but everyone is entitled to their own opinion.
Is purpose of the article to trigger outrage at the audacity of a homeowner to contemplate building an ADU inside the setback zone?
This is another reason why Tim Keane and the Homebuilders Association repudiate true tree protection. What currently exists outside the buildable-area along most single family property lines? Trees! And they are taking-up potential revenue-generating real estate.
Conspicuously sacrificing quality-of-life for the quantity in coffers is a ruinous and unsustainable way to design and operate a livable city.
There are costs not mentioned here.
What happens to water when the entire city is impermeable, either buildings or concrete?
Atlanta is increasingly becoming a heat sink as well. This accelerates it
Hello, all,
Thank you for taking time to read and offer insights on this report.
The potential policy of inducing construction of accessory dwelling units in the City of Atlanta seems likely to spur many vibrant conversations. We at SaportaReport will do our best to report these discussions. This story is part of the effort.
This is just one story. It has the limitations of being just one story. This piece contemplates the potential policy through one application for a variance, which seeks to reduce a setback from 20 feet to 15 inches. This piece includes sales history in an effort to provide greater context of the property to which the variance would be applied.
Please continue to share your comments on the stories. You are always welcome to email me: david@saportareport.com
Best regards,
David Pendered